Programme : Proposition d’aménagement et 3D
Planning étude : Décembre 2024 à février 2025
Planning travaux : N/A
Budget travaux : N/A
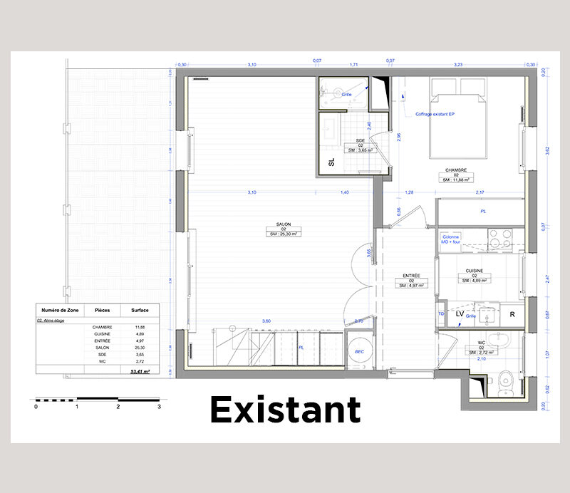
Ce projet consistait à repenser entièrement le premier niveau d’un duplex afin de créer un grand espace de vie convivial et lumineux. Les clients souhaitaient regrouper le séjour, la salle à manger et la cuisine, tout en conservant une entrée confortable et un espace parental spacieux et fonctionnel.Nous avons eu carte blanche pour revoir la disposition des pièces, en tenant compte des contraintes techniques. La proposition validée, présentée sous forme de plans et rendus 3D, prévoit un espace de vie de 29 m² ouvert sur la terrasse exposée sud, idéal pour recevoir famille et amis, une suite parentale avec chambre, rangements et salle d’eau privée, ainsi qu’une entrée généreuse intégrant un coin buanderie et un espace bureau supplémentaire.Le résultat : un aménagement moderne, fonctionnel et lumineux, où chaque zone trouve sa place et favorise la convivialité.












