Menu
Nos réalisations
Biens d’exception
Logements
Tertiaire
Copropriété
Design
Faisabilités/Concours
L’agence
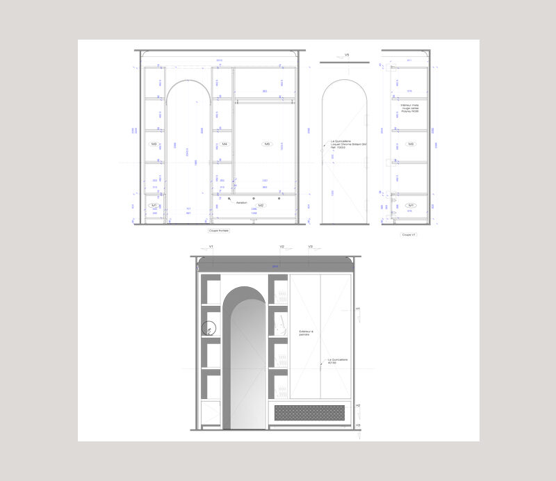
Création d’un dressing sur-mesure, Paris VII
e
© 2025 FB Archi •
Mentions légales
•
Conception graphique : Aurélie Gaudinot
Theme by phonewear
↑