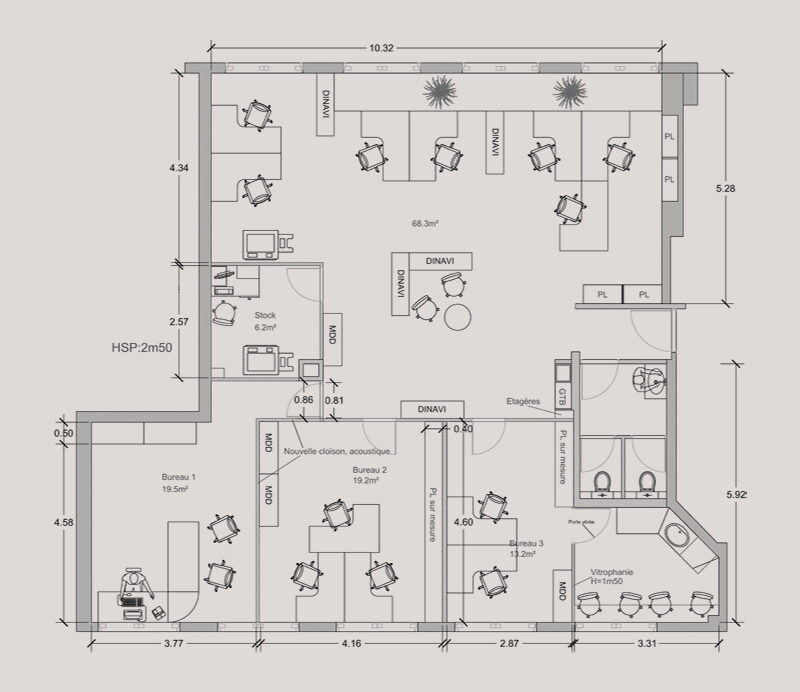
Bureaux Levallois